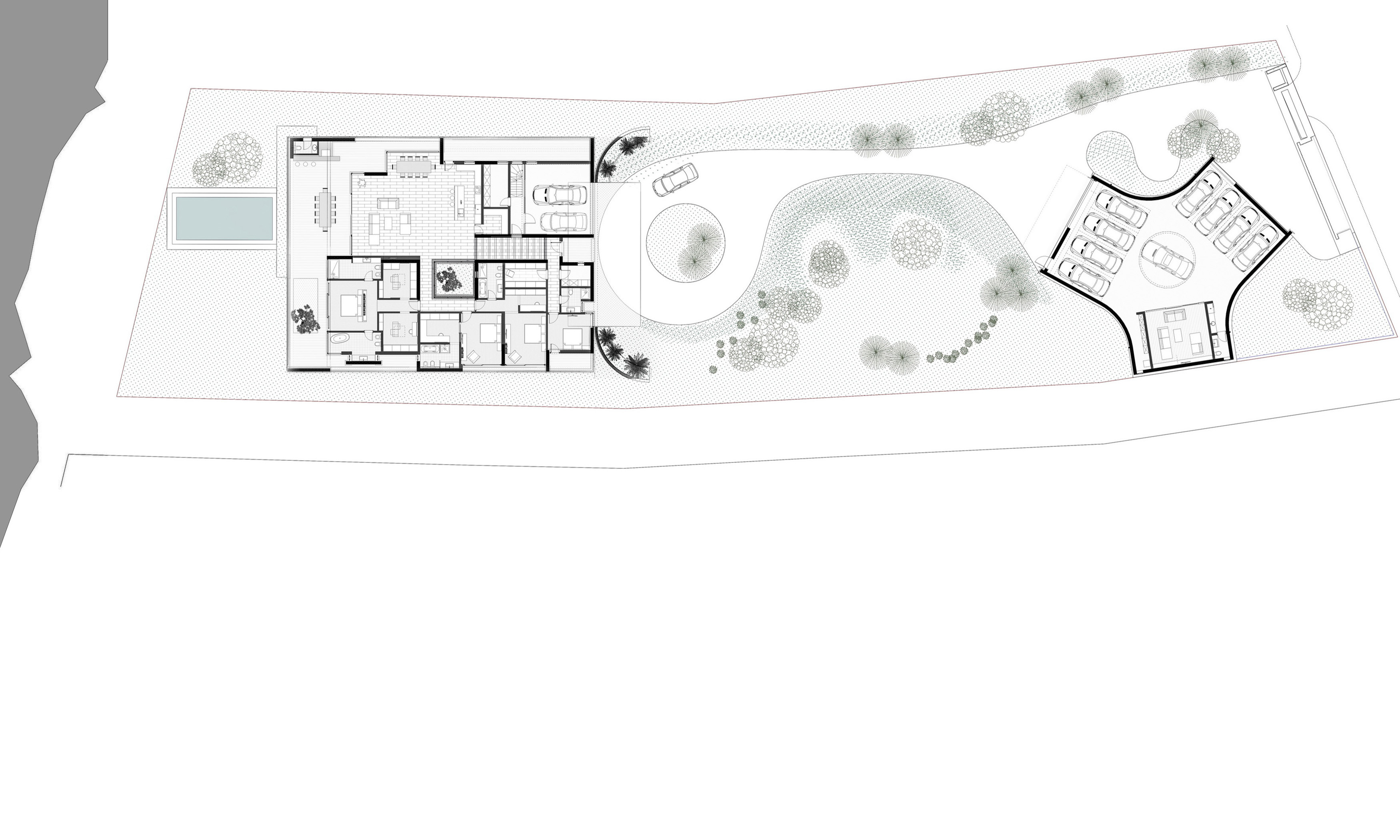
casa 9. constanta
Project team:
arh. Ion Popusoi
arh. Sergiu Zmeu/ Atat s-a putut – atelier de arhitectura
Date: 2021
Place: Constanta
Status: Built
Total Area: 925 sqm
Photo: Vlad Eftenie, Vlad Patru
Awards
Nomination at the Bucharest Architecture Annual.
https://www.anuala.ro/proiecte/2021/118/















