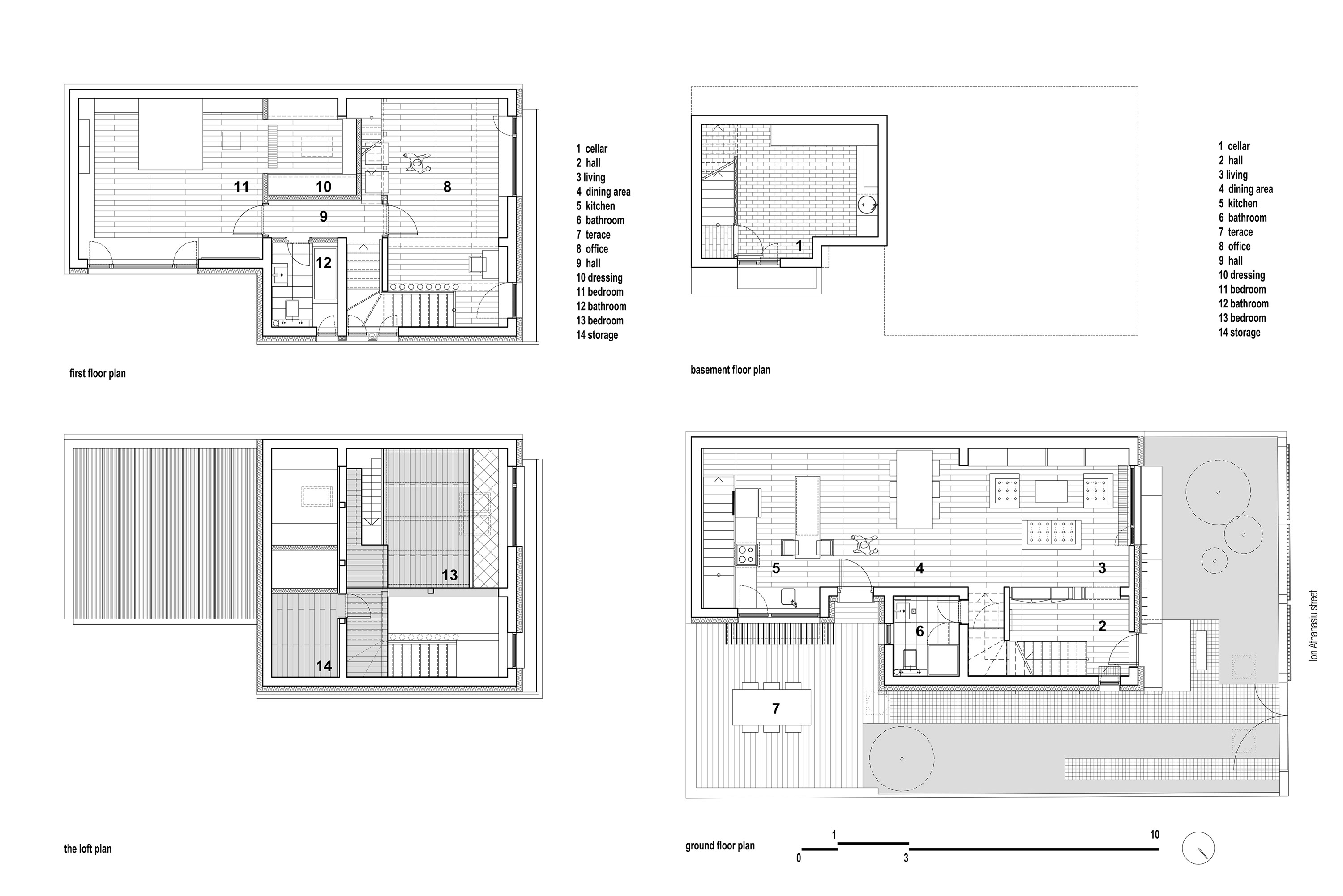
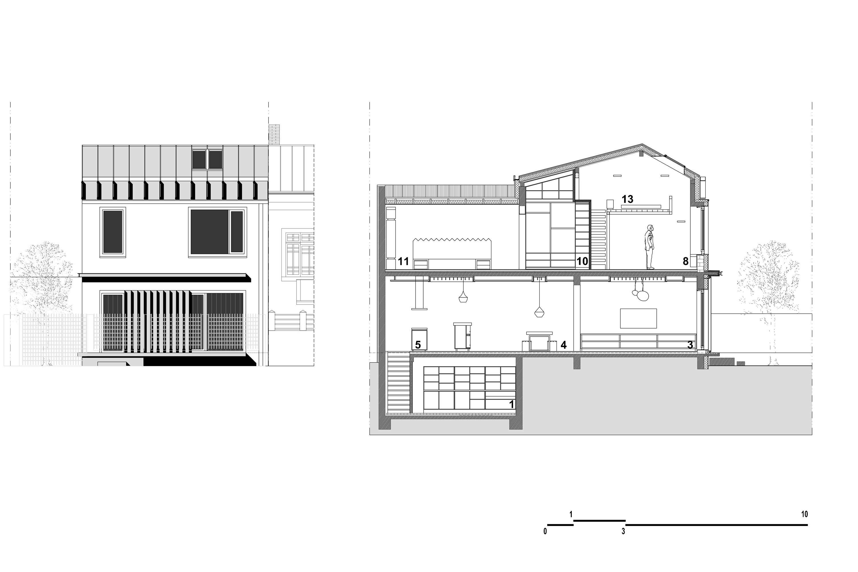
damian house






Project team:

 arh. Ion Popusoi

Furniture, wood and metal work

Petre Tanasa, Sorin Nechifor

Date: 2014-2015

Place: Ion Athanasiu street, Bucharest

Status: Built

Total Area: 200 sqm

Photo: Dan Samoila