dealul cetatii loft
Project team:
arh. Ion Popusoi
carh. Bogdan Preda
arh. Dragos Hinta
ing. Andrei Parfene
Date: 2023
Place: Brasov
Status: Built
Total Area: 160 sqm
Photo: Arthur Tintu
Awards:
• Nomination at the National Biennial of Architecture – Romania. Dealul Cetatii loft
https://www.uar-bna.ro/2023/proiecte/175/
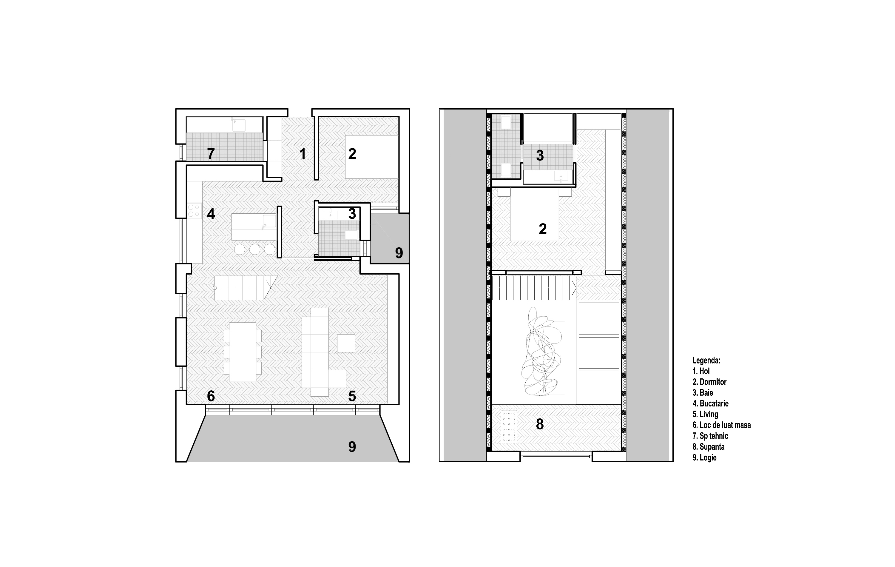
The Loft, developed on the last 2 levels of a residential building located on Dealul Cetății, offers a panoramic view to the urban landscape.
The interior spaces, flooded with light, are interconnected horizontally and vertically, without a clear boundary between functions, in a fluid composition with clean lines.
The open space makes efficient use of the place, and the functional areas of the house are delimited by the difference in size and finish rather than by walls, which will block the view or freedom of movement.
The walls replaced by light partitions simulate the idea of a separation with minimal limitation of space.

























