emil garleanu apartment building
Project team:
arh. Ion Popusoi
carh. Bogdan Preda
Date: 2014-2017
Place: Brasov. Emil Garleanu nr. 22-24
Status: Built
Total Area: 2000 sqm
Photo: Radu Malasincu
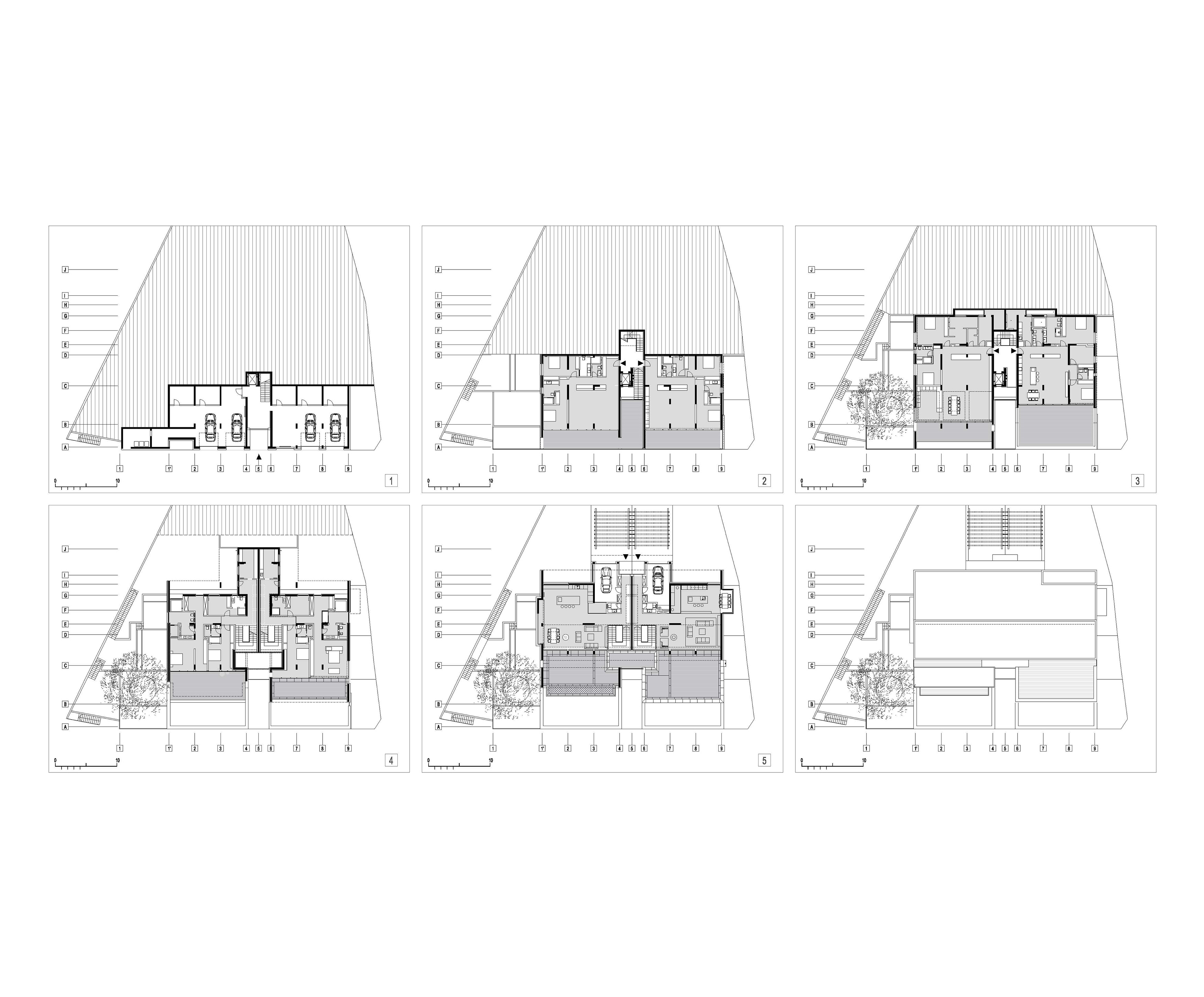
For a better relationship with sloping site (26 degree), the building retracts dynamically in steps on each level,
asymmetrically, offering each apartment a spacious terrace in front.
From the site, there is a panoramic view to the old city and mountains behind.
The volume is decomposed through a series of horizontal and vertical joints, in relation with topography,
panorama and optimal orientation, while maintaining the unitary character of the composition.
The facade to the city skyline is completely glazed, while the side and back facades cut fragments from the landscape.
The base of the building, contains technical space and parking, remaining opaque in contrast to higher volumes, large city-oriented screens.
Floors 1 and 2 comprise two apartments per level with main access from the lowest level.
Upper levels accommodate two duplex apartments with separate access on the opposite side.
The inner spaces are fluid, interconnected, flooded by light and fully opened to the valley's view.
The interior offers a continuation of space along the entire length of the building from the upper garden to the front terrace,
in this way the immediate or distant neighborhoods, are included in everyday life.
Wood finishes cross the glass screen to enhance this continuity.

















